‹ › ×
    Accueil
    • La Verrière
    • La Tonnelle
    • La Gloriette
    • Tarifs
      • Tarifs 2025
      • Tarifs 2026
    • Contact et réservation

     

    LA GLORIETTE

    COULEURS MATIN - La Verrière

     La GLORIETTE

    Maison de vacances

    Cette petite maison a tout d’une grande.

    Une pièce à vivre, avec son coin cuisine, s’échappe à l’extérieur sur un jardin chapeauté d’une gloriette.

    A l’arrière, une chambre et une salle de douche attenante.

    Dans cet espace de 25 m2 tout est pensé pour que le confort tutoie la qualité des aménagements et de la décoration.

    Dans le salon, le sol, en grès cérame, reprend les décors des carreaux de ciment anciens.

    Le papier peint, à motifs géométriques, structure la chambre.

    Les teintes et les matières s’accordent pour créer une ambiance chaleureuse et singulière.

    Le jardin complète cet ensemble. Le laurier rose et les essences arborescentes se côtoient.

    On devine l’inspiration de la mer toute proche.

    Une vraie maison, rien que pour soi, le temps d’un week-end ou pour des vacances invitant au repos.

    Gîte La Gloriette
    Gîte La Gloriette - Le jardin
    Gîte La Gloriette - La gloriette
    Gîte La Gloriette - Le salon extérieur
    Gîte La Gloriette - Le salon
    Gîte La Gloriette - Le salon
    Gîte La Gloriette - La cuisine
    Gîte La Gloriette - La chambre
    Gîte La Gloriette - La chambre
    Gîte La Gloriette - La chambre
    Gîte La Gloriette - La salle de douche
    Gîte La Gloriette - Le cabanon
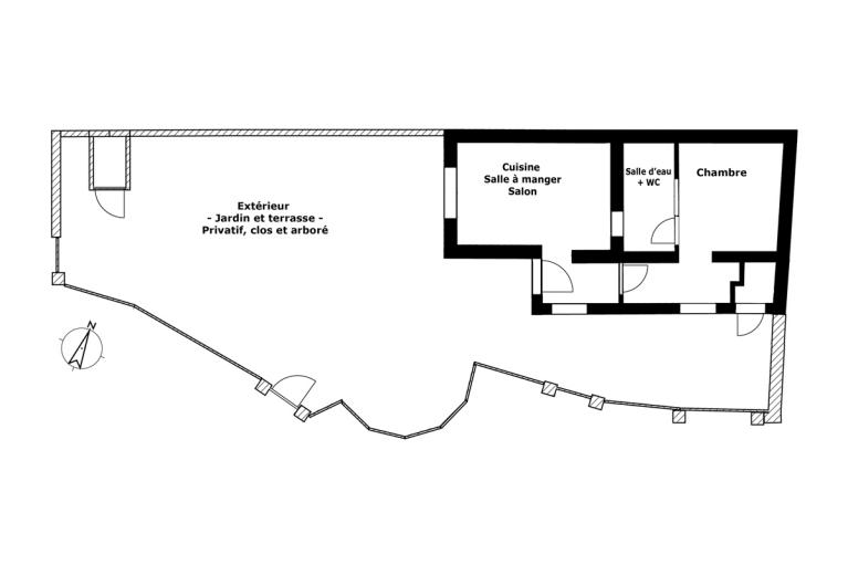
    COULEURS MATIN - Plan La Verrière

    La GLORIETTE

    (N° Enregistrement : 8519400083066)

     

    Location maison de plain-pied, orientation sud/ouest.

    Surface 25 m2 - De 1 à 2 personnes -

    2 pièces - 1 chambre.

     

    INTERIEUR :

    Séjour / Salle à manger / cuisine 

    Salle de douche - WC

    Chambre : 1 lit 140 x 200

    Buanderie

     

    EXTERIEUR :

    Jardin et Terrasse 

    Gloriette

      

    EQUIPEMENT DE LA MAISON - inclus dans votre séjour

    INTERIEUR :

     

    CHAMBRE : Couette, housse de couette, couverture, oreillers (lit fait à votre arrivée).

     

    CUISINE : Plaques de cuisson induction, four, hotte, micro-ondes, réfrigérateur avec compartiment congélateur,

    bouilloire, machine à café filtre, machine à café SENSEO, robot ménager multi-usages, grille pain,

    vaisselle, ustensiles de cuisine, casseroles et plats, couverts et verres.

    1 éponge et 2 torchons, liquide vaisselle.

     

    MULTIMÉDIA : Télévision écran plat 80 cm, lecteur DVD, Connexion internet wifi, chaîne HIFI.

     

    SALLE DE DOUCHE ET WC : Douche, lavabo, sèche-cheveux.

    2 serviettes de toilette (1 grande et 1 petite) par personne.

    1 tapis de bain, Liquide lave-mains, 1 rouleau de papier toilette.

     

    AUTRES : Lave linge, table et fer à repasser, aspirateur, produits d'entretien,

    jeux de société, cartes, brochures, idées de sorties en Vendée.

     

    CHAUFFAGE : Chauffage électrique.

     

    EXTERIEUR :

     

    GLORIETTE ET JARDIN : Barbecue à charbon de bois, parasol, salon de jardin (1 table et 2 fauteuils), 2 fauteuils d'extérieur, table basse.

     

     

    SERVICES ANNEXES - non inclus dans votre séjour

     

    SERVICE DE MÉNAGE :

     

    Ménage de fin de location prix : 40 €uros, au cas ou vous n'auriez  pas pu le faire le jour de votre départ

     

    INFORMATIONS COMPLEMENTAIRES

     

    STATIONNEMENT : Un emplacement de stationnement public gratuit pour votre véhicule à 20 m.

    Pour le confort de tous, notamment des plus jeunes (bébé), nous demandons à nos chers vacanciers de ne pas fumer à l'intérieur du gîte. 

    Pour des raisons d'hygiène et d'allergie, nous ne sommes pas en mesure d'accepter les animaux.

    Nous vous remercions de votre compréhension.

     

     

     

    CONTACT

      

     

    Pour réserver votre séjour, 

    merci de bien vouloir

    NOUS CONTACTER 

    par téléphone ou par E-mail,

    afin que nous puissions vous CONFIRMER les disponibilités des gîtes.

     

     

     

    COULEURS MATIN

    TEL : 06 72 23 65 99

    www.couleurs-matin.fr 

    ATOUT FRANCE - 3 ÉTOILES 2022-2027 ATOUT FRANCE - 3 ÉTOILES 2022-2027
    CLÉVACANCES - 3 CLÉS CLÉVACANCES - 3 CLÉS
    CYBEVASION - 3 ÉTOILES CYBEVASION - 3 ÉTOILES
    GÎTES DE FRANCE - 3 ÉPIS GÎTES DE FRANCE - 3 ÉPIS